Проект дома Камыш-Дуо - зеркальное отражение
Технология: Керамика
| Жилая площадь: | 107.7 м2 |
| Общая площадь: | 190.2 м2 |
| Количество комнат: | 3 |
| Кубатура пространства: | 895 м3 |
| Минимальные размеры земельного участка: | 13.1 x 21.2 м2 |
| Площадь по пятну застройки: | 83.6 м2 |
| Высота до конька крыши: | 9.6 м |
| Площадь крыши: | 155.9 м2 |
Описание проекта
Спаренный дом, одноэтажный, с эксплуатационным чердаком, с полностью выстроенным подвалом, с гаражом
ПЛАНИРОВКИ
| Первый этаж : | 66.0 м2 |
| дневная комната: | 32.2 м2 |
| кухня: | 12.8 м2 |
| лестничная клетка: | 6.2 м2 |
| холл: | 6.0 м2 |
| тамбур: | 3.8 м2 |
| кладовая: | 3.6 м2 |
| туалет: | 1.4 м2 |
| Мансардный этаж : | 51.0 / 51.1 м2 |
| комната: | 15.2 / 16.7 м2 |
| комната: | 12.3 / 15.7 м2 |
| комната: | 9.6 / 12.1 м2 |
| передняя: | 6.4 м2 |
| ванная: | 4.4 / 6.6 м2 |
| лестничная клетка: | 3.1 м2 |
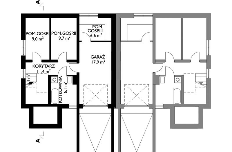
| Подвал : | 63.6 м2 |
| гараж: | 17.9 м2 |
| коридор: | 11.2 м2 |
| хозяйственное помещение: | 10.5 м2 |
| хозяйственное помещение: | 8.2 м2 |
| хозяйственное помещение: | 6.6 м2 |
| котельная: | 6.1 м2 |
| лестничная клетка: | 3.1 м2 |
Вам нравится проект, но хотелось бы ввести изменения в функциональную систему?
Ничего сложного! Напишите нашему менеджеру по электронной почте: archeton@archeton.com.ua, мы подготовим для Вас предложение по стоимости этих изменений,
или заполните форму с контактными данными.
РАЗРЕЗ




